Emilie et son mari ont acheté une maison il y a quelques temps. Certains travaux et aménagements ont été faits rapidement après leur installation, afin qu’ils se sentent chez eux le plus tôt possible. Ayant deux jeunes enfants, le couple a aujourd’hui les moyens nécessaires pour envisager de plus grosses transformations. Ils ont préféré faire appel à un architecte pour prendre en charge la totalité du chantier.
Le couple adore cette maison : elle a beaucoup de charme et de cachet, mais ils ne savaient pas comment exploiter le potentiel du rez-de-chaussée. Les nombreuses pièces en enfilades compliquaient la tâche.
Le but de cette rénovation : apporter une cohérence en conservant le cachet de l’ancien.
« Tout s’est déroulé parfaitement, nous avons ajouté de nombreux éléments au cahier des charges et sommes très satisfaits du résultat. Nous n’arrivions pas à nous projeter dans cette maison, c’est chose faite avec ce beau projet ! » explique le propriétaire.
Ci-après découvrez les photos avant travaux :
Le rôle d’Archibien ?
Une fois les attentes et besoins du couple rédigés dans le cahier des charges, Archibien a sélectionné trois architectes qui correspondaient au mieux à leurs attentes. Les architectes avaient alors trois semaines pour étudier le projet et redessiner les pièces de vie selon les critères souhaités. Emilie et son mari ont reçu directement les esquisses chez eux, ils n’avaient plus qu’à choisir !
Présentation des 3 propositions Archibien
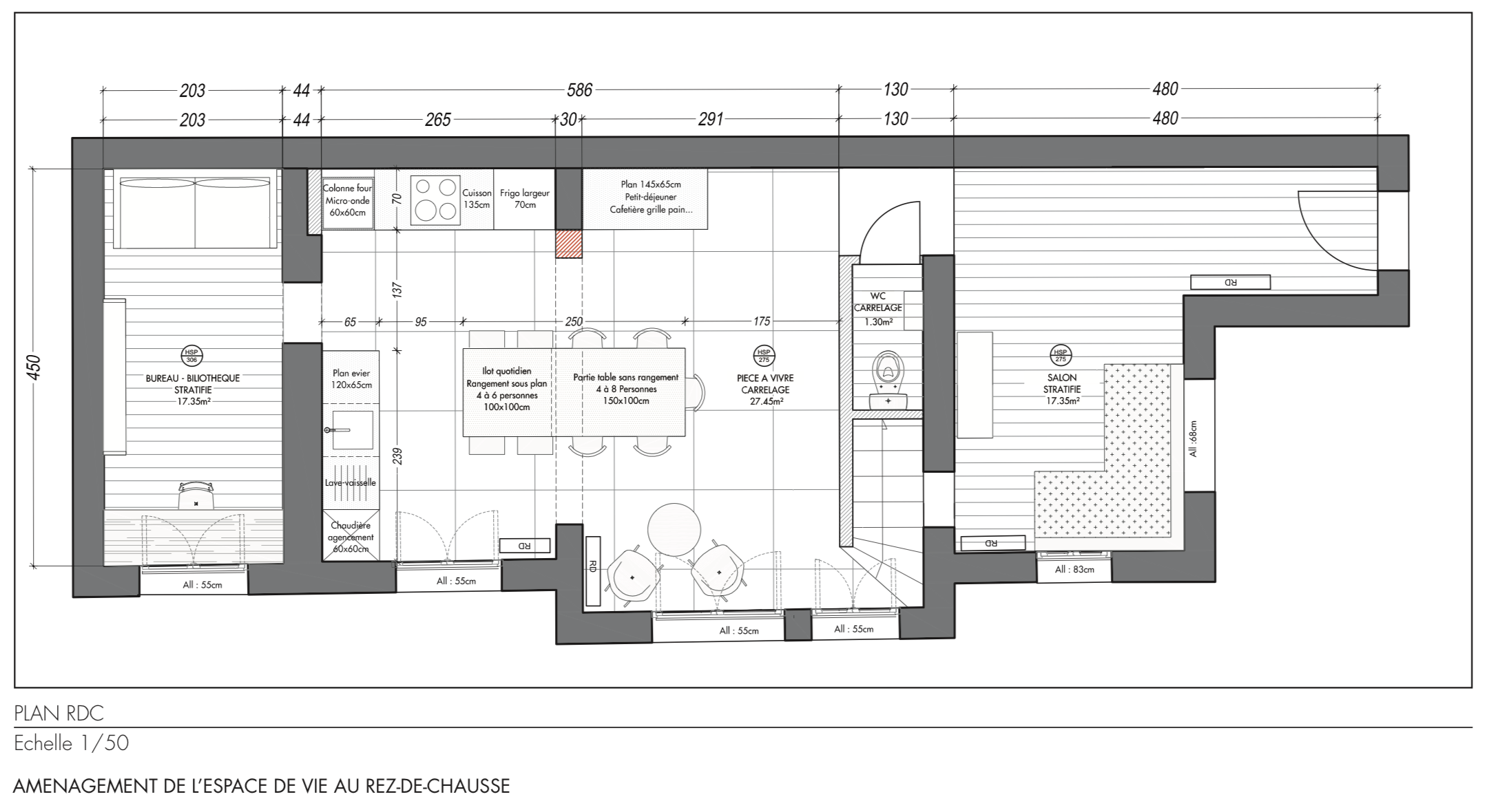
1- « Un espace de vie de famille, 3 ambiances », par l’architecte Yasmine Gaïzi
Au rez-de-chaussée, l’espace de vie est réparti en trois fonctions principales bien distinctes, permettant de profiter de l’ensemble de l’espace à différents moments de la journée : un séjour intimiste pour regarder un film, une salle à manger pour les grands repas, une large cuisine dînatoire pour cuisiner en famille.
2- « Au ville de l’eau », par l’architecte Céline Allard
La deuxième agence propose un réaménagement de façon à ce que la cuisine devienne la pièce à vivre. Usage quotidien ou usage festif, cette pièce s’adapte à la vie de famille. Cet agencement permet également d’avoir une pièce complémentaire, cuisine et salle à manger ainsi que bureau et bibliothèque.
3- « Plan Séquence », par l’agence d’architecture Illustre
Au fil du temps, cette belle maison construite au XIXème siècle, doit être modifiée afin de s’adapter à de nouveaux usages et modes de vie. L’ouverture de la cuisine sur la salle à manger, par le percement du mur porteur prolonge la distribution linéaire existante. Depuis l’entrée jusqu’à la nouvelle cuisine, la circulation s’organise à la manière d’un plan séquence cinématographique.
Le choix du couple :
Le couple s’est tourné vers la proposition de l’architecte Yasmine Gaïzi. L’architecte a réussi à exploiter au maximum le cahier des charges afin de proposer une rénovation globale, qui rentrait dans le budget serré des propriétaire. La grande cuisine au rez-de-chaussée est très agréable à vivre ; au 1er étage, la transformation des WC en salle de bains attenante à la chambre permet de profiter d’une suite parentale, placée en bout de maison pour garder l’intimité. Pour finir, le 2e étage est entièrement consacré au domaine des enfants.
« Clients adorables qui ont su faire preuve de patience pendant les travaux en milieu occupé, car on a fait finalement plus de choses que prévu. Ils sont ravis du résultat”, précise Yasmine, l’architecte lauréate.
Ce qui rend ce projet unique ?
Le couple avait défini un petit budget pour la rénovation de leur maison. Ils voulaient néanmoins confier les travaux à un professionnel, afin de se sentir rassurés sur la bonne réalisation des travaux. Comme quoi, faire appel à un architecte ne nécessite pas obligatoirement un gros budget 😉
Le mot de la fin : Les propriétaires sont ravis de l’aménagement et ils ne regrettent pas être passés par un architecte ! Même avec un budget serré, le défi est relevé !
| Comme ce couple, faîtes appel à Archibien : nous réalisons votre cahier des charges et sélectionnons trois architectes pour concevoir votre projet. Vous les rencontrez, ils travaillent pour vous. Vous recevez leurs propositions, vous choisissez la meilleure et l’architecte avec qui la réaliser ! → archibien.com |
[insta-gallery id= »1″]
📰 Vous êtes journaliste ou influenceur(se), et vous souhaitez publier un projet Archibien dans votre média ?
👉 Contactez-nous sur communication@archibien.com





