Paul, expert du lait et de sa transformation, cherchait l’accompagnement d’une agence d’architecture pour la réalisation de son projet : créer une laiterie en plein Paris !
Création de trois espaces distincts
Ouvrir une laiterie dans Paris est un projet rare : l’ambition est de produire du fromage localement, et de le vendre en circuit court. Chaque jour, Paul prévoit de transformer plusieurs centaines de litres de lait bio en fromage, qu’il affinera puis vendra, avec des événements et animations pour que chacun puisse comprendre comment le fromage est produit.
Le projet consistait donc à créer trois espaces aux fonctions distinctes : un atelier de transformation du lait en fromage, une cave d’affinage et un lieu de vente. Paul souhaitait aussi intégrer un espace d’animation autour du fromage (ateliers de dégustation, ateliers de fabrication, etc.). Il avait à cœur de présenter son atelier en toute transparence, 100% visible du public.
Paul a déniché un local ouvert sur la rue dans le 18e arrondissement de Paris, au rez-de-chaussée d’un bâtiment Haussmannien, avec une petite cave. Il désirait transformer cette surface brute mais saine en un lieu attractif, engageant et lumineux. Simple, sobre et contemporain, le style architectural se devait de refléter une atmosphère chaleureuse.

Une fois le cahier des charges rédigé avec le Paul, Archibien a sélectionné 3 agences d’architecture qui correspondaient spécialement à ses attentes. Pendant 3 semaines et après une première visite, les architectes ont planché sur le projet pour répondre au mieux à ses attentes et lui proposer le local professionnel dont il rêvait. Après ces 3 semaines d’impatience, Paul a reçu directement chez lui les propositions. Quelques jours plus tard, il recevait les agences l’une après l’autre pour qu’elles lui présentent leurs dessins.
« J’ai reçu trois propositions très intéressantes, qui challengeaient toutes mon idée initiale. Finalement, le plus dur a été de faire un choix ! »
Paul
Présentation des 3 propositions Archibien
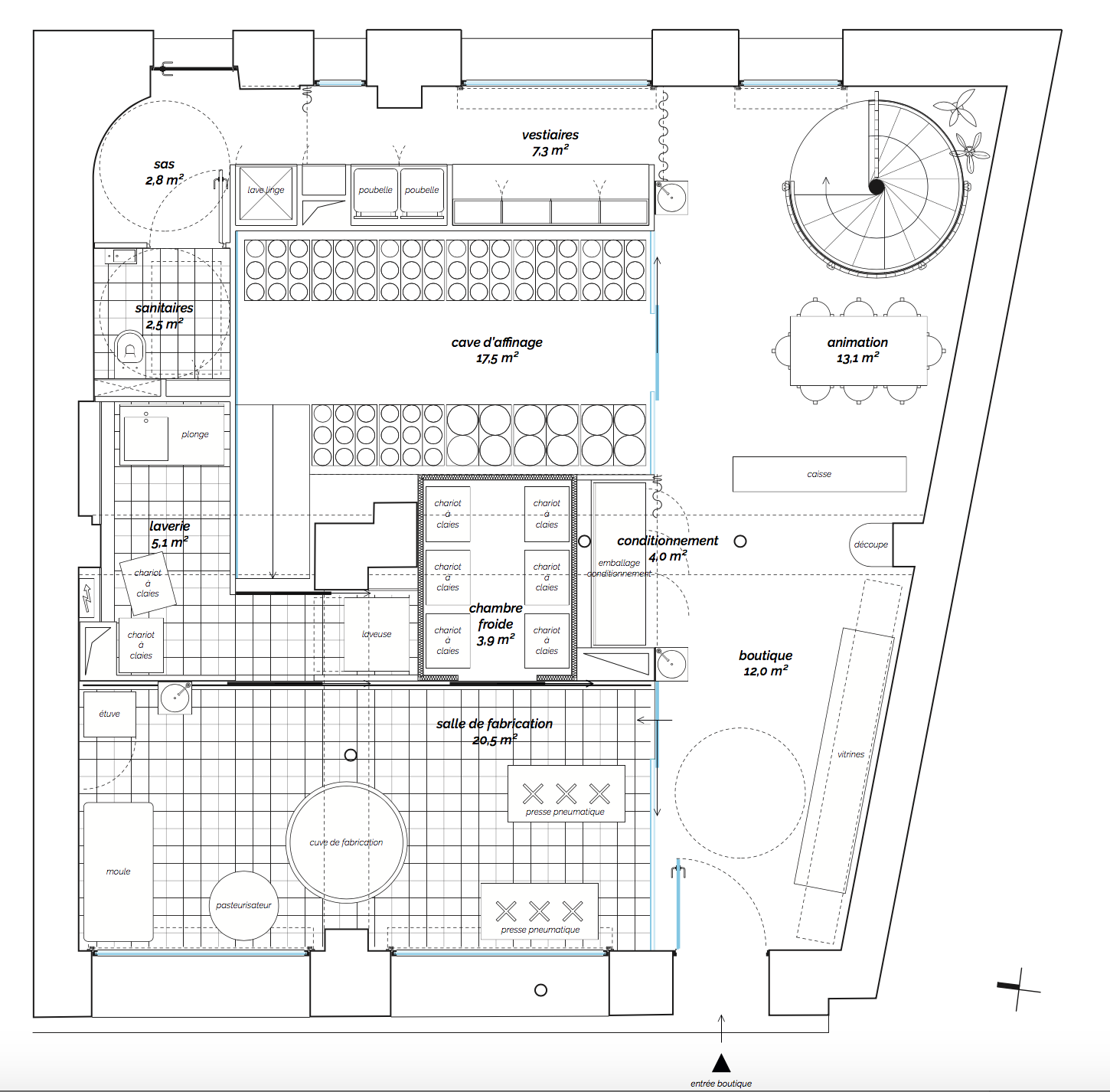
Laiterie La Chapelle – Inée
Sylvain Raillard et Timothée Souchard ont pris le parti de mettre en vitrine les produits finis dans l’espace d’animation et de vente. L’atelier de transformation, en second plan, donne accès à la cave d’affinage au sous-sol par un escalier hélicoïdal. Cela donne une proposition traversante, lumineuse et articulée autour d’un noyau technique compact et accessible depuis la cour, pratique pour l’exploitation.
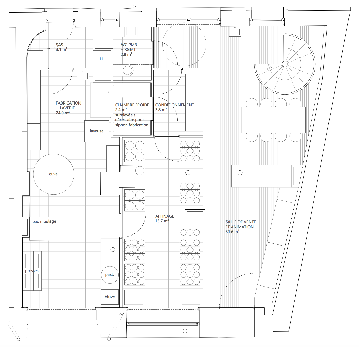
Laiterie artisanale de Paris – Vorbot
Clément Talbot et Sammy Vormus ont proposé un plan original : remonter la cave d’affinage au rez-de-chaussée, pour qu’elle soit visible des clients et des participants aux ateliers d’animation ; et mettre la salle de fabrication en vitrine, pour exprimer de la façon la plus directe et évidente la vocation du lieu.
Mise en scène – AKR Architecture
Killian Roland a, de son côté, réalisé une interprétation plus créative du programme et de la configuration existante du local. Il a choisi de présenter dans les trois vitrines sur rue les trois activités principales de la laiterie : d’abord l’atelier de transformation, puis la cave d’affinage, puis l’espace de vente et d’animation. Cela constitue comme une bande dessinée du processus de fabrication du fromage, lisible depuis la rue.
Le choix de Paul
C’est la proposition d’AKR Architecture qui a séduit le jeune artisan. La mise en scène des trois espaces depuis l’extérieur lui a beaucoup plu : elle correspond à sa démarche qui vise à recréer en ville des lieux de production artisanale et à les rendre visibles. Le fait d’avoir intégré l’affinage au rez-de-chaussée plutôt qu’au sous-sol était un plus en terme d’exploitation : il reste de la surface au sous-sol pour augmenter la production dans le futur !





Le mot de la fin
Paul a été ravi de la qualité des rendus et le respect des agences des contraintes indiquées sur le cahier des charges. Il avait plusieurs idées d’aménagement de l’espace pour son local, mais les propositions ont toutes dépassé ses attentes. Le service Archibien l’a aidé dans sa décision et dans l’accomplissement de son projet pro : la Laiterie La Chapelle.
« J’ai pu comparer les plans, les matériaux, les budgets, les dates ; rencontrer des architectes passionnés et experts, et finalement choisir une solution qui dépassait mes attentes ! »
Paul
Photographies : ©Pierrick Roland Photographe
[insta-gallery id= »1″]Comme Paul, faîtes appel à Archibien : nous réalisons votre cahier des charges et sélectionnons trois agences pour concevoir votre projet. Elles vous livrent leurs propositions, vous choisissez la meilleure et l’architecte avec qui la réaliser !
→ archibien.com (et pour les pros : archibien.com/pro)
→ archibien.com
📰 Vous êtes journaliste ou influenceur(se), et vous souhaitez publier un projet Archibien dans votre média ?
👉 Contactez-nous sur communication@archibien.com
 
						 
				 
	 
	 
	 
	 
	 
	 
	 
	 
	 
	 
	