Jeune restaurateur, Johann a repris une crêperie à Paimpont, dans le 35, suite au changement de vie des anciens propriétaires. Grâce à une première saison estivale fructueuse, il a pu préparer son budget afin de rénover son premier restaurant selon ses envies. Pour son projet de rénovation, Johann a différentes problématiques. D’un point de vue pratique, il aimerait améliorer la qualité phonique de son restaurant pour éviter le brouhaha et mettre aux normes ces WC pour les personnes à mobilité réduite. D’un point de vue esthétique, le restaurateur aimerait ouvrir l’espace pour mettre en avant la cuisine et le bar, mais également ouvrir sur l’extérieur pour que ses clients profitent d’une vue sur le lac face au restaurant.
En parallèle il voudrait cacher certains éléments moins intéressants de son décor, comme la vaisselle et les machines à café. Autre problématique pour Johann, démarquer son restaurant de celui de ses concurrents. “Les crêperies en Bretagne se ressemblent souvent, très traditionnelles et rustiques. J’aimerais un restaurant qui me ressemble !”. Il s’imagine une décoration bistro chic, avec des touches industrielles et contemporaines comme une verrière ou des moulures parisiennes. Des envies plein la tête, il était indispensable pour Johann de pouvoir comparer différents travaux d’architectes. Et c’est chose faite, grâce à Archibien !
“Faire appel à un architecte c’est une double plus-value pour un restaurateur : les salariés sont contents de travailler dans un bel endroit, et les clients sont ravis de venir y manger ! ”
Johann, le porteur de projet
Archibien vous accompagne dans votre projet architectural ! Retrouvez l’intégralité de nos services à ce lien !
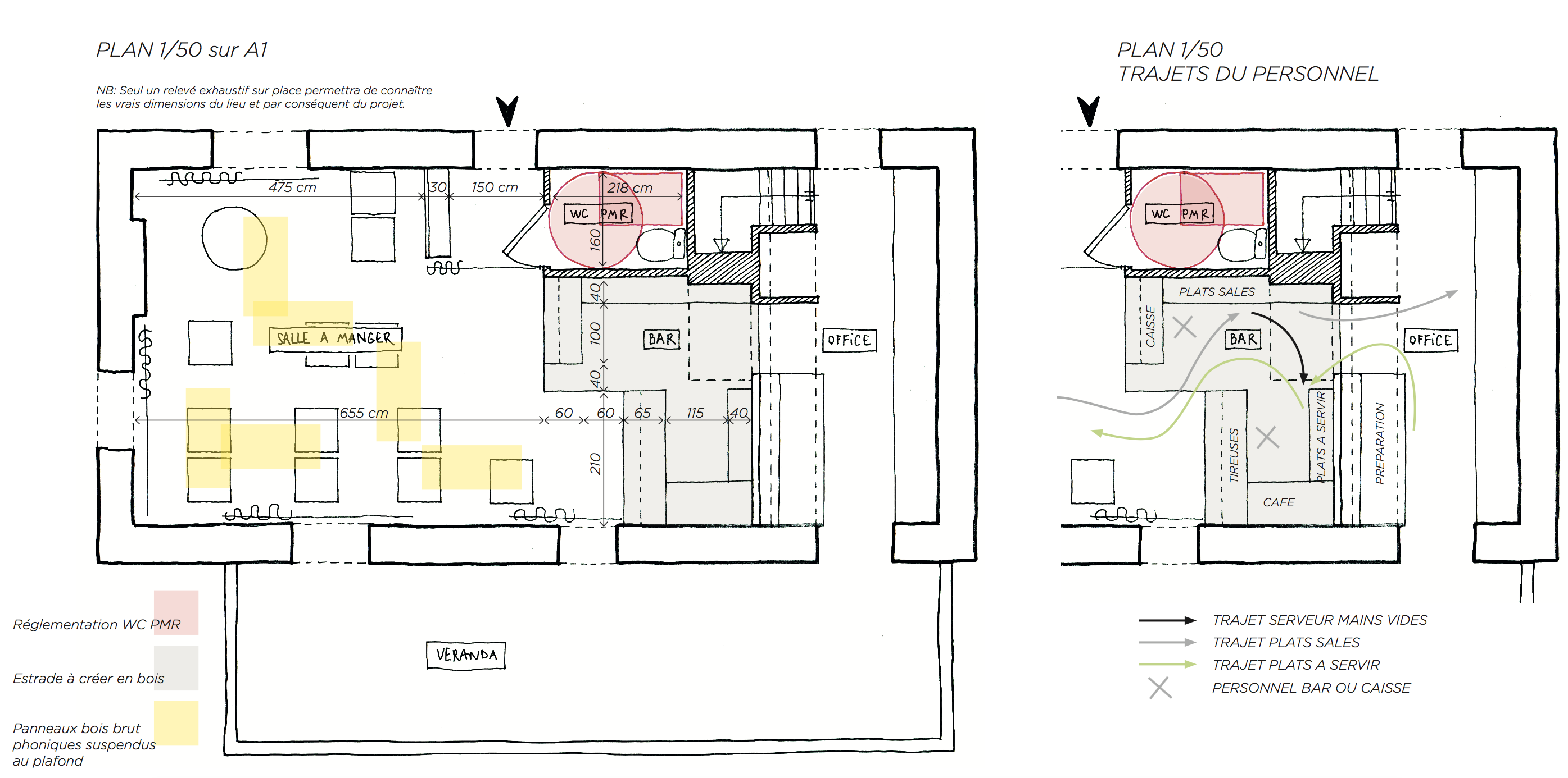
👇 Découvrez les lieux avant les travaux ! 👇

Tous les détails sont désormais spécifiés dans le cahier des charges pour envoi aux trois architectes sélectionnés avec soin par Archibien. Pendant trois semaines, les agences nominées vont s’atteler à respecter au mieux les attentes de Johann en apportant chacun leur touche, ce qui fera la différence. Une fois les trois propositions reçues directement chez lui, le jeune restaurateur n’a plus qu’à faire son choix !
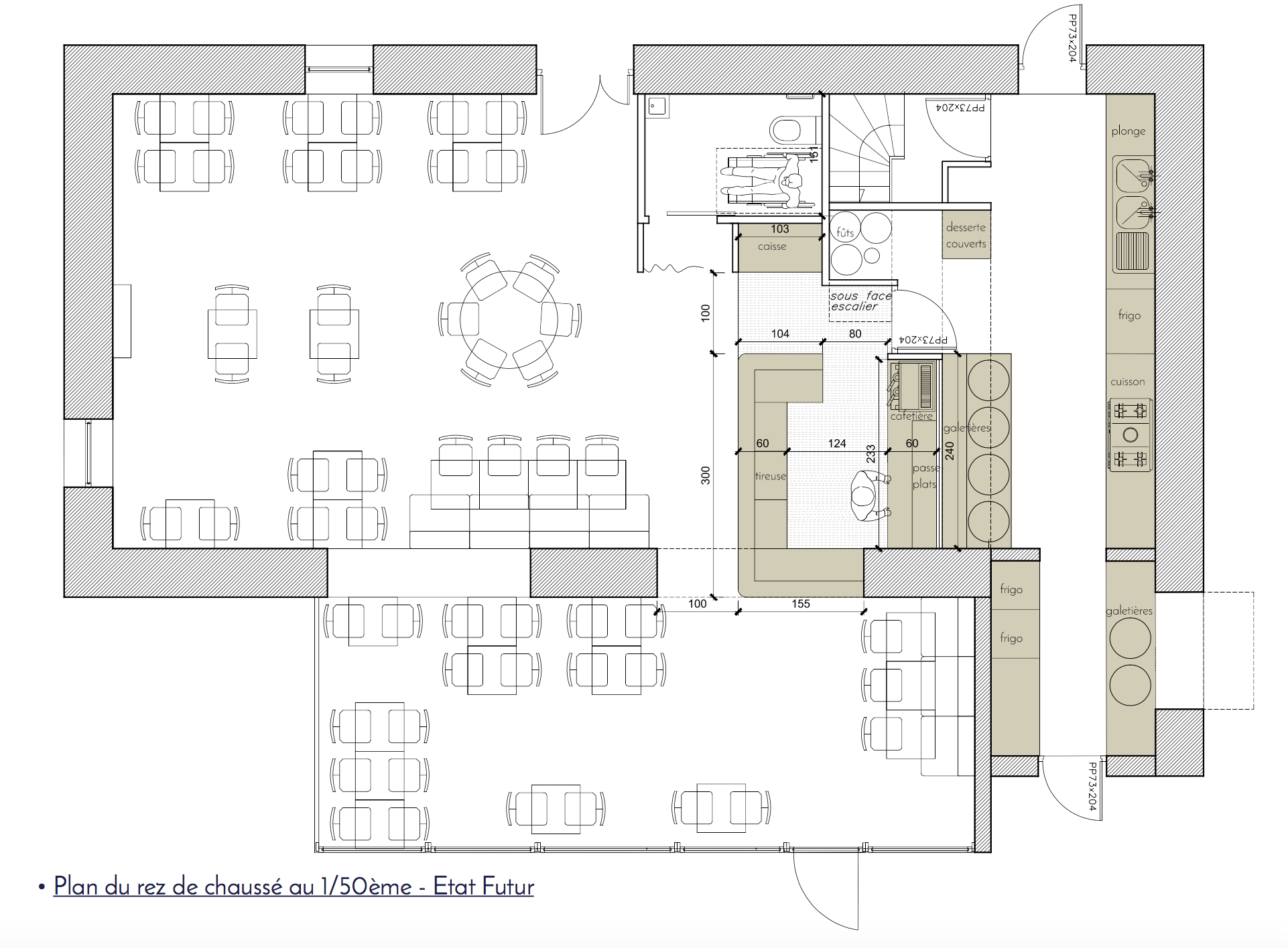
Comparer trois projets d’architectes pour rénover son restaurant
1- « Rénovation d’une crêperie à Paimont », par l’agence Les Petites Architectures
Dans la restauration, la qualité du service est primordiale pour un bon bouche-à-oreille. C’est pourquoi Anne-Aël a choisi d’agencer le restaurant en lieu de travail optimisé et pensé dans les moindre détails : un bar ouvert et tourné vers la salle, une disposition particulière pour que les clients ne voient que le meilleur et une ambiance bistrot tamisée et chaleureuse grâce à l’utilisation de matériaux tels que le bois et le métal poli pour le bar.
2- « A la carte » par l’architecte Julia Pauillac
Cette architecte a choisi le parti-pris de créer une liaison visuelle entre la salle, l’office et la véranda. Le passage entre la salle et la véranda est agrandi, le sol rehaussé et la cloison séparant l’office de la salle est devenue une verrière contemporaine. Un style léger et industriel pour la décoration avec des luminaires modernes et des étagères esthétiques.
3- « La complète », par l’architecte Jean-Baptiste Simon & Maxime Pipard
Dans cette troisième proposition, l’objectif premier des deux architectes est de redonner un caractère contemporain au lieu grâce à un projet d’identité visuel complet : changer le revêtement des sols, remplacer le mobilier et faire une ouverture la plus large possible sur l’extérieur pour que les clients profitent au mieux de la vue sur le lac depuis leur table.
Choisir le bon projet pour rénover son restaurant, en fonction des critères donnés
Avec un projet présenté comme une recette de galette complète traditionnelle, soit autour de trois ingrédients, c’est la proposition de Jean-Baptiste et Maxime qui a séduit notre maître d’ouvrage. Une joie pour lui de voir son restaurant entièrement modernisé selon ses goûts et ses attentes !
Profitez, vous aussi, de l’expérience Archibien pour vous guider dans votre projet ! Discutons ensemble de vos besoins lors d’un premier échange gratuit ! ➡️ Prendre rendez-vous
Découvrez le résultat final 👇



“Il était nécessaire pour nous d’aller plus loin dans la rénovation pour donner une ambiance cohérente et contemporaine à ce restaurant de caractère.”
explique Jean-Baptiste, l’architecte qui a remporté le projet.

Ce qui rend ce projet unique ? Opter pour une décoration contemporaine avec des matériaux comme le chêne massif blanchi, contrastée par des chaises de bistrot d’occasion.


Le mot de la fin : ne pouvant se permettre de fermer son restaurant plusieurs mois d’affilés, Johann a gagné en temps et en efficacité en faisant appel à un architecte. Notre restaurateur savait qu’il respecterait ses goûts, son budget et les délais.
Et ça, c’est Archibien !
© Photographies : ©Jonathanletoublon
Vous avez aimé ce projet de rénovation de restaurant ?
Faîtes appel à Archibien : nous réalisons le programme de votre projet et vous aidons à en définir les bons paramètres. Nous sélectionnons des architectes locaux en mesure de concevoir votre projet et de le suivre selon vos attentes, vos besoins et votre budget. Vous les rencontrez, et recevez leurs propositions. Vous pouvez ainsi choisir l’architecte avec qui réaliser votre projet !
➡️ archibien.com
⬇️ Découvrez d’autres articles sur notre blog Archibien ! ⬇️
- Construire moins, transformer mieux : pourquoi l’avenir de l’architecture passe par l’existant et la réhabilitation
- Qui contacter pour rénover une maison ? Le guide pour sécuriser votre projet en 2026
- Comment rénover une maison à Haguenau ?
- Les nouvelles technologies réinventent l’ingénierie du bâtiment
- De la forêt finlandaise aux Alpes, un chalet contemporain éclairé par Secto Design
📰 Vous êtes journaliste ou influenceur(se), et vous souhaitez publier un projet Archibien dans votre média ?
👉 Contactez-nous sur communication@archibien.com